凤鸣梧桐府
售完 住宅 现房 已有165578人看过
0574-63316555
致电售楼处了解更多信息折后均价约9000元/㎡
房贷计算器- 占地面积43483㎡㎡
- 建筑类别高层
- 建筑面积133016㎡㎡
- 户数
- 栋数
- 容积率2.38
- 装修程度毛坯
- 绿化率30%
- 开盘时间2019年1月11日
- 入住时间预计2021年3月
- 产权年限70年
- 停车位1046个
- 所属商圈吾悦广场商圈
- 开发商 慈溪恒坤置业有限公司
- 物业公司碧桂园物业
- 项目位置慈溪市横彭公路与翠屏路交汇处
- 接待中心横彭公路与翠屏路交汇处(横河中学斜对面) (0574-63316555)
楼盘动态
更多>- 2019-09-30
看房团
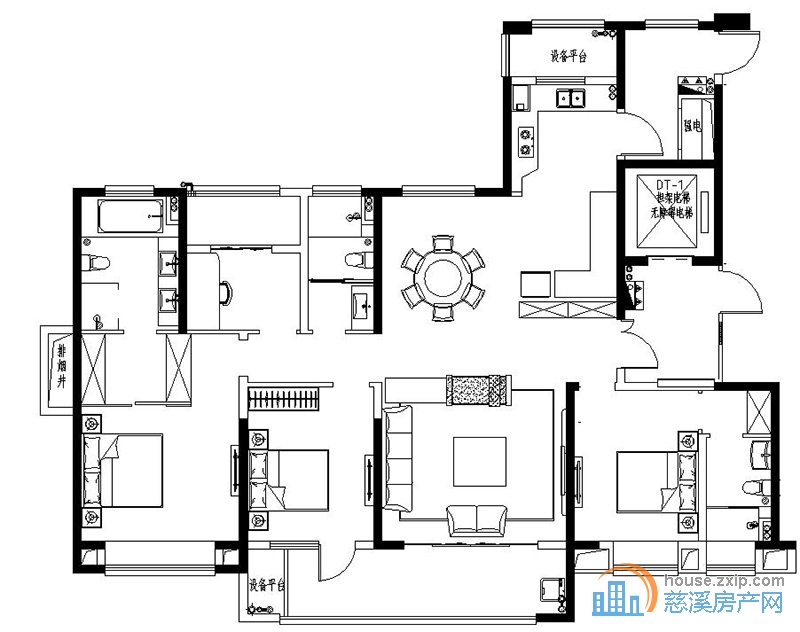
(我们将为您保密个人信息)户型图
更多>凤鸣梧桐府 位置及周边


















